·應用領域:
■通信系統;
■金融系統;
■工業自動化系統;
■互聯網數據中心(IDC);
■多媒體數據中心(MDC);
■其他重要負載系統。
·方案特點:
■外觀設計:標準19寸黑色機柜;
■可維護性:在線熱拔插,無需轉旁路;
■綠色節能:高效率、低熱損耗、對電網無污染;
■可擴展性:實現在線擴容,在線升級,在線維護;
■高性價比:降低用戶初期購置及后期擴容維護運營成本;
■高可靠性:采用冗余技術,消除單點故障瓶頸,為關鍵負載提供可靠電源保護;
■高可用性:用戶可隨時對系統進行維護,無須等到停電時再檢修,有效降低故障隱患;
■高抗干擾性:保證無論來自市電或UPS供電本身的“電源干擾”盡可能地被消除,包括傳導干擾與輻射干擾。
·模塊化方案概述:
模塊化UPS采用標準的19英寸機柜結構設計,每套系統由靜態開關、系統監控、功率模塊、外接電池及電池柜組成。其中功率模塊可并聯,平均分擔負載。如遇故障自動退出系統,由其它功率模塊來承擔負載,既能水平擴展,又能垂直擴展。全新的冗余并機技術使設備無單點故障,以確保電源的高可用性。所有的模塊可以實現熱插拔,可以實現在線更換、維修,是高可靠的電源保護方案。
(1)靜態開關
靜態開關模塊主要用于逆變輸出和交流旁路電源之間的快速切換,以全面提高系統的供電安全性和可靠性,接收兩組AC輸入,選擇一組輸出,在線工作情況下,靜態開關將功率模塊逆變輸出連接到系統輸出上,如果功率模塊在某一特定時間內不能夠提供足夠的電壓,靜態開關將立即切換到旁路電源。
靜態開關采用國外先進的大功率晶閘管,可以實現零切換,同時具有較強的抗沖擊和抗短路能力,使系統的可靠性、穩定性大大提高。內部具備自檢功能、互鎖功能、系統輸出異常保護功能、瞬間掉電保護功能、輸出過載、短路保護功能。具備RS485接口,集成了MODBUS通訊協議,同時標配輸入輸出干結點卡。整個靜態開關旁路支持在線熱插拔,可實現在線更換不影響對負載供電。它還具備UART通信功能,可與系統監控、模塊單元進行通信,隨時發送和接收工作指令及各種告警信息。
(2)系統監控
系統監控對系統數據采集由32位高效數字信號處理器完成。顯示器采用320X240的帶觸摸LCD,可以同時支持觸摸操作和按鍵操作,滿足不同的操作使用習慣,簡便靈活。可提供RS232、RS485通訊接口,標配多路輸入輸出干結點卡。可選配TCP/IP擴展卡和GSM短信報警器進行遠程網路監控。系統監控分為三個區域:狀態指示燈區域、數據信息顯示區、按鍵操作區。狀態指示燈區通過LED的不同狀態向用戶提供簡單的系統狀態信息,LCD數據信息顯示區通過LCD顯示屏向用戶提供詳細的系統狀態信息,系統監控顯示:系統數據(SYSTEM)、模塊數據(UPSMDULE)、歷史事件記錄(EVENTS)、功能設定(SETUP)四個操作界面。采用中英等多種語言顯示,可隨需切換。為用戶提供友好的操作界面,所有操作均實現圖形界面,簡單明了,用戶操作按鍵時,LCD顯示屏都有相應的信息顯示,使用戶有較佳的操作體驗。
(3)功率模塊
功率模塊采用多制式在線式雙變換技術,將市電整流、濾波、穩壓后變換為直流電,該直流電在為后級逆變電路供電的同時又通過獨立的數字充電器對電池組進行充電和智能化管理,后級逆變電路為一高效率的三階正弦波調制電路,再將直流電重新逆變為交流電為負載提供穩壓、穩頻、持續、可靠的電源。其交流輸入為三相市電,輸出直流為±240V為專用電池組充電,輸出交流為三相正弦波交流電壓。
模塊內部具有開機自檢功能、交流輸入過/欠壓保護、交流輸出過/欠壓保護、輸出過載保護、短路保護、過溫保護、輸出異常自動脫離保護、電池過放電保護等。
模塊具備完善的保護功能及智能通信接口,可與系統監控器進行通信,隨時發送和接收工作指令及各種告警信息。
模塊內部具備完整的UPS功能,集整流、逆變、充電和控制于一體,不需要外接同步控制信號或其他控制手段,模塊即可正常工作,減少了系統運行瓶頸,提高了可靠性。
有效的模塊防塵設計:IP防護等級為(IP30),正面防護面網和濾網可在線拆卸清洗,所有電路板均噴涂三防漆,提高系統的環境適應性,可以在惡劣的環境中使用。
標配SNMP卡,采用HTTP協議、SNMP協議、TELNET協議等。可對UPS中市電狀態、電池狀態、旁路狀態、逆變狀態、自檢狀態、開機狀態和輸入電壓、輸出電壓、負載百分比、輸入頻率、電池電壓、電池容量、電池放電時間、UPS機內溫度、周邊環境溫度等等UPS電源的運行情況一目了然,提高UPS電源保障系統的管理效率和管理品質。選用開放的Windows7、Unix、Linux操作系統平臺。
可以選配備溫濕度傳感器,插入多功能網卡,通過網絡實現對機房環境的溫濕度監控和報警。
智能化配電系統
該系統為UPS電源的輸入和輸出一體化配電集成系統,與UPS主機配套使用,內含UPS的輸入開關、輸出開關和維修旁路開關以及系統的總輸入開關,主開關均配置輔助觸點,內含電流傳感系統,并與UPS主機通訊。
該配電系統由輸入配電單元、分路輸出配電模塊、監控模塊、隔離變壓器組成。輸出配電單元每個配電模塊配置了18個輸出分路,每個分路的電流從6A-32A隨需設定,并根據現場負載的配置及變化情況調整三相平衡,配電系統可安裝最多6個即插式配電模塊,配電模塊數量可選。
該配電系統與UPS主機同尺寸外觀,同顏色。標準配置為:液晶顯示器、UPS維護旁路面板(含系統總輸入開關、UPS輸入開關、輸出開關、維修旁路開關,為帶輔助觸點開關)。檢測電路主板,三相輸入輸出的電壓和電流傳感器組件,中線電流、地線電流傳感器,外接EPO信號接口。
可選裝輸入K值隔離變壓器和支路電流監控器。
該配電系統可配備網卡,能夠通過網絡監控該配電柜的參數、狀態和歷史紀錄以及報警信息,能網絡監控配電柜的輸入輸出三相電壓、電流、頻率、中線電流、地線電流、每相的KVA數、KW數、功率因數、支路電流等并可設定電流高低電壓報警門限值,可選裝輸入K值隔離變壓器和支路電流監控器。
外接電池及電池柜
電池采用免維護全封閉蓄電池,電池容量和品牌可根據需要進行配置,靈活的電池接入方式,可配置30-44節,減少電池電壓和數量,提高電池組的使用壽命。電池安裝可根據實際的應用靈活選擇,即可以是組裝式電池柜,也可以是開放式多層多列電池架,亦可以選用與UPS主機同品牌同外觀同顏色的電池柜內。
·模塊化單機可靠性分析
評估UPS系統履行職責的可靠性,不僅要考量UPS的MTBF,還要考量UPS的MTTR及市電的MTBF。當UPS發生故障的同時市電也發生故障時,負載將會失去電力,也就是說UPS關鍵職責的失效。負載暴露在沒有保護的市電之下的時間長短取決于維修時間的長短。如果維修一臺UPS需一周時間,而市電的平均無故璋時間也是一周,那么,UPS發生故障時,負載將很可能失去電力。如果UPS的MTTR是1小時,那么市電的MTBF將不會對關鍵負載的失效概率產生很大影響。很顯然,降低UPS的 MTTR將會降低對關鍵負載的失效概率。降低UPS的MTTR最好的方法就是盡量減少可能影響UPS維修的因素 。模塊化單機UPS因為具有在線熱插拔的功能,自然是較好的選擇。
從設計原則上講,承擔供電任務的整個電源系統都必須采用具有高度“容錯”功能的冗余式的供電方案,以確保無論是在市電電網出故障時或是在任何模塊(包括系統控制模塊)發生故障時,還是在進行日常維護/檢修操作時或因故致使保險絲燒毀/斷路器開關“跳閘”時,互聯設備均應由“在線式UPS”的逆變器電源來供電,而不應進入由普通的市電電源/應急備用發電機組經UPS的交流旁路來供電的狀態。
綜上所述,模塊化單機UPS具有較長的履行職責平均無故障時間(MTBF),較小的平均維修時間 (MTTR)及較強的抗市電干擾風險能力及高度“容錯”功能,是高可靠的電力保障方案。
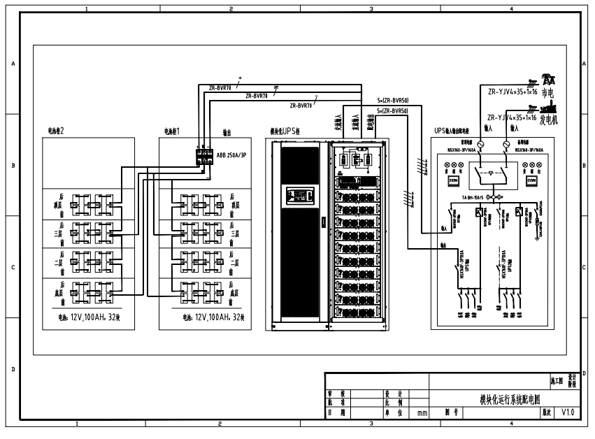
·模塊化單機UPS方案圖:
運行示意圖:
供電原理圖:





Copyright ? 2003 - 2023 . All Rights Reserved