·應用領域:
■通信系統;
■金融系統;
■工業自動化系統;
■互聯網數據中心(IDC);
■多媒體數據中心(MDC);
■其他重要負載系統。
·方案特點:
■外觀設計:標準19寸黑色機柜;
■可維護性:在線熱拔插,無需轉旁路;
■可擴展性:實現在線擴容,在線升級,在線維護;
■綠色節能:高效率、低熱損耗、對電網無污染;
■高性價比:降低用戶初期購置和日后擴容維護及運營成本;
■高可靠性:解決單點故障的瓶頸,為關鍵負載提供可靠電源保護;
■具有高抗干擾性:保證無論來自市電或UPS供電本身的“電源干擾”盡可能地被消除,包括傳導干擾與輻射干擾。
·雙總線模塊化(N+X)方案概述:
互聯網數據中心(IDC)和多媒體數據中心(MDC)是高速互聯網的調控中心。用戶對它們所承擔的對信息資源(數據、語音和圖像信息)的遠程處理、存儲和轉送的“時效性”要求較高。哪怕是僅幾秒鐘的“停機”均會給整個互聯網的安全運行和用戶的生產經營帶來無法估量的損失。嚴重時甚至會造成社會和經濟生活的嚴重癱瘓。因此,IDC必須向用戶提供365×24h連續不斷的高速、安全和可靠的信息資源增值服務。為達此目的,從設計原則上講,承擔著向IDC機房供電任務的整個電源系統都必須采用具有高度“容錯”功能的冗余式的供電方案,以確保無論是在市電電網出故障時或是在任何模塊(包括系統控制模塊)發生故障時,還是在進行日常維護/檢修操作時或因故致使保險絲燒毀/斷路器開關“跳閘”時,互聯設備均應由“在線式UPS”的逆變器電源來供電,而不應進入由普通的市電電源/應急備用發電機組經UPS的交流旁路來供電的狀態。這是因為只有“在線式UPS”的逆變器電源才有可能向用戶的負載提供同時具有穩壓、無頻率“突變”,無干擾和波形失真度較小的高質量正弦波電源。對于包括后備式UPS,在線互動式UPS在內的“非在線式UPS”來說,它們主要對輸入電源的電壓進行調整,對輸入電壓的頻率波動,各種電源干擾和電壓失真度并無“實質性”的改善。這就意味著,在整個供電系統中,不應存在單點“瓶頸”故障隱患。為此,應盡可能地配置具有高度“容錯”功能的UPS冗余供電系統。也就是說,在這種UPS供電系統的運行中,即使遇到某些“部件”偶然發生“故障”時,整個UPS供電系統必須仍能正常工作。
相對于傳統意義上的UPS,在雙總線系統中采用模塊化(N+X)UPS配置具有更高的優勢。在行業用戶的信息網絡供電系統建設中,經常會對高端UPS的容量產生錯誤的、或是過低或是過高的預計,其結果可能會導致采購成本過高、無法滿足負載需要或造成資源、空間及能源浪費等情況。雙總線模塊化(N+X)通過可擴充的模塊結構有效的解決了這一問題,它可以幫助用戶在未來發展不明確的情況下分階段進行建設和投資。當用戶的用電負載需求增加的時候,只需要根據用電規劃階段性的增加功率模塊即可。同時,通過模塊化的整合,能夠充分滿足供電系統的擴展性需要,并具有更靈活的機動性及更好的可靠性,是電源保護領域未來發展的趨勢和里程碑。此外,在傳統高端UPS產品中,一直存在著單臺UPS容易出現單點故障的問題,以往用戶對此的安全保障措施是采用傳統的“1+1”或“N+1”的冗余機制,這不僅增加了采購、安裝及維護成本,而且只能容錯一次。而在雙總線模塊化(N+X)系統中,各并聯模塊皆為內置冗余的智能型獨立個體,無需系統控制器對并聯系統進行集中性的控制。當任何模塊(包括系統控制模塊)發生故障后,該冗余設計將會實現較大程度的故障冗余,同時還可以允許用戶根據自身的需求選擇超過一次容錯率的冗余。也就是說在雙總線模塊化(N+X)的系統下,用戶只需要購買相應的功率模塊,即可實現“N+X”的故障冗余及升級擴容。雙總線模塊化(N+X)系統可以有效地解決傳統UPS中存在的制約性問題,進而使得用戶獲得了較佳的擴展性,并且可以在必要的時候自行對系統進行自主的分配與集成。既滿足了后期設備的所需擴展,又降低了用戶的初期購置成本。
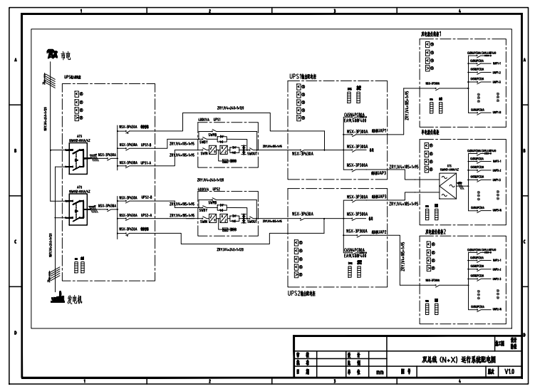
根據當今UPS產業的技術發展水平,以選用具有“雙總線輸入”和“雙總線輸出”供電功能的模塊化(N+X)UPS冗余供電系統為宜。它是由如下幾部分供電系統所構成的:
1)雙總線輸入供電系統
雙總線輸入供電系統基本配置為:由市電輸入電源+備用發電機組+“自動切換”控制柜+輸入配電柜。自動切換控制系統時刻監視著各種輸入電源的實時運行狀態,并確保總是將其中高可靠的一路電源送到UPS的輸入端。對于某些重要的IDC機房而言,其“應急發電機”電源實際上是一套由多臺柴油發電機+發電機并機控制柜所組成的冗余式發電機供電系統。
2)雙總線輸出配電系統
為了消除可能出現在UPS并機系統輸出端與用戶端之間的“單點瓶頸”故障隱患,有必要配置雙總線模塊化(N+X)UPS的輸出配電系統。其基本配置是由“N+1”型模塊化UPS冗余供電系統(優選“1+1”或“2+1”型并機供電方案)+輸出配電柜+負載自動切換開關(LTS)所組成的UPS輸出供電系統。對于某些要求較高的場所,還應配置由負載同步控制器(LBS)+兩套“N+1”型模塊化(N+X)UPS冗余供電系統所組成的具有較高“容錯”功能的供電系統。鑒于目前在IDC機房中所用的服務器和磁盤陣列機等產品中有(30~50)%為采用“雙電源輸入供電”體制的產品,對于這些設備,可以直接將分別來自兩套“N+1”型并機系統的電源連接到這種“雙電源輸入設備”的兩個輸入端上。對于采用“單電源輸入供電”方式的關鍵負載,則是將分別來自兩套“N+1”型并機系統的電源首先連接到“負載自動切換開關”(常見的是STS型的靜態開關和SS型的快速切換開關)的兩個輸入端上,然后再將用戶的關鍵設備連接到“負載自動切換開關”的輸出端上。
·雙總線模塊化(N+X)可靠性分析
評估UPS系統履行職責的可靠性,不僅要考量UPS的MTBF,還要考量UPS的MTTR及市電的MTBF。當UPS發生故障的同時市電也發生故障時,負載將會失去電力,也就是說UPS關鍵職責的失效。負載暴露在沒有保護的市電之下的時間長短取決于維修時間的長短。如果維修一臺UPS需一周時間,而市電的平均無故障時間也是一周,那么,UPS發生故障時,負載將很可能失去電力。如果UPS的MTTR是1小時,那么市電的MTBF將不會對關鍵負載的失效概率產生很大影響。很顯然,降低UPS的 MTTR將會降低對關鍵負載的失效概率。降低UPS的MTTR較好的方法就是盡量減少可能影響UPS維修的因素 。雙總線模塊化(N+X)UPS因為具有在線熱插拔的功能,自然是較好的選擇。
從設計原則上講,承擔供電任務的整個電源系統都必須采用具有高度“容錯”功能的冗余式的供電方案,以確保無論是在市電電網出故障時或是在任何模塊(包括系統控制模塊)發生故障時,還是在進行日常維護/檢修操作時或因故致使保險絲燒毀/斷路器開關“跳閘”時,互聯設備均應由“在線式UPS”的逆變器電源來供電,而不應進入由普通的市電電源/應急備用發電機組經UPS的交流旁路來供電的狀態。
綜上所述,雙總線模塊化(N+X)UPS具有較長的履行職責平均無故障時間(MTBF),較小的平均維修時間 (MTTR)及較強的抗市電干擾風險能力及高度“容錯”功能,應用這套方案系統將得到穩定、高效、安全的24h不間斷電源電力支持,堪稱專業機房電源系統的范例,是高可靠的電力保障方案。
·選配同IDC的集中監控系統“兼容性”好的UPS冗余供電系統
為了滿足信息網絡對IDC和MDC機房實現無人或少人值守管理和遠程集中監控的需求,從而提高對UPS供電系統的“可管理性”,對互聯網數據中心來說,除本身應配置對它的所有IT設備進行實時監控的網絡管理系統之外,還應建立一套對“非IT設備”的集中監控體系,以便對諸如空調機、配電柜、電池組、發電機組、漏水警報、安全系統和消防系統等設備的運行情況進行實時的監控和分析。為此,要求所選用的UPS冗余供電系統應配置有如下通信接口:
1)在UPS上配置RS232/RS485接口,Modem或SNMP適配器;
2)用于顯示UPS的工作狀態/報警信息的“繼電器干接點”型的輸出通信接口;
3)“用戶自定義”輸入信號(門禁、煙霧、溫度、濕度等報警信號)的“繼電器干接點”型的輸入通信接口;
4)對各種“非IT設備”配置必要的數據采集器;
5)配置相應的集中監控和管理軟件包或通信協議。
利用上述的輸入/輸出通信接口和相應的電源管理軟件或用戶現有的網管集中監控系統就可以組成所謂的智能化IDC和MDC機房的集中監控系統。在這樣的網管系統中,可實現的主要調控功能有:
1)調閱在UPS的LED/LCD顯示屏上所能觀察到的UPS的實時運行參數(例如:輸入/輸出電壓、電流、頻率、有功功率/視在功率、功率因數及電池組的充放電電壓/電流等參數);
2)“互聯網數據中心”所用的各種“機房環境調控設備”的“運行大事記”(自各種設備開機以來,按時序排列的,曾出現過的故障/報警/用戶所執行過的操作等信息);
3)萬一發生故障時,執行網絡廣播報警(彈出報警窗口),電話或手機的自動撥號、自動傳呼或發E-Mail等操作,以便通知值班人員及時到現場排除故障或維修;
4)對UPS的備用電池組執行可編程的電池容量“自測試”操作,如果發現電池的“實有容量(Ah)”偏低時,還應自動發出“電池需要更換”的預報警信號;
5)將“用戶的自定義”報警信號(例如:溫度/濕度、門禁、消防等報警信號)經UPS的輸入通信接口被納入IDC機房或智能化樓宇的統一的集中監控系統;
6)由IDC和MDC的主管當局所指定的人員,根據不同的授權權限,分級“重新調整”/設置各種相應設備的運行參數或執行遠程的故障分析/診斷操作。
·運行示意圖:
·供電原理圖:





Copyright ? 2003 - 2023 . All Rights Reserved